随着我国国土空间规划体系的建立,全域、多要素、立体地看待国土空间资源的保护与利用,成为城市可持续发展和高质量发展的重要议题。本系列聚焦立体城市,探索地下与地上空间的协同发展路径,从多维空间角度,关注城市生态保护、安全韧性、功能统筹、空间治理、一体化设计、基础设施保障、技术创新、政策法规建设等多个领域。以期为国土空间资源更加高效、立体、集约利用提供有益借鉴。
作者:杨京生 吕志成
作者单位:北京市市政工程设计研究总院有限公司
编辑整理:林泷嵚 赵怡婷
单位:北京市城市规划设计研究院
01
北京市市政管网系统发展面临的问题
截止2021年底,北京市地下管线总长度建设规模已超过22万公里,井盖类设施数量约335万套,位居全国首位,地下管网的密度远高于国内其他城市的平均水平,传统直埋仍是地下管网的主要敷设方式。全市地下管线中,2000年前建成的管线约5.63万公里,建设年代不详的管线2.08万公里,合计占全市市政管线35%,其中超过设计使用年限的管线长度为6560公里,致使存在着道路井盖较多、部分老城架空线网密集、路面偶有反复开挖、管线事故时有发生等问题。如何实现城市市政工程管线的集约化、综合化、廊道化的敷设,提升北京城市环境质量水平、确保城市安全运行,成为北京市十四五期间基础设施发展的重要课题。
02
北京市综合管廊体系拓展和重构
十三五期间,北京市按照市委、市政府的总体部署,围绕贯彻落实新版总体规划,陆续建成了一批有代表性的综合管廊项目,干/支线型市政综合管廊建成约200公里,为北京市新建功能区的基础设施高质量发展打下坚实的基础。然而,与国外综合管廊建设先进城市相比,北京市城市综合管廊总体上处于起步期,尚需结合城市高质量发展要求,加强对新理念、新技术、新材料的运用,实现科学、有效地利用城市地下空间资源。
目前北京市在总结前一阶段综合管廊建设的经验和理念的基础上,围绕综合管廊有效需求和效益的关系、成本控制要求、出地面构筑物景观协调等,结合实际情况重新统筹和规范了城市综合管廊工程规划设计标准体系,并将综合管廊类型分为干线综合管廊、干支结合综合管廊、支线综合管廊、小型综合管廊四大类。
(1)干线综合管廊:用于容纳城市主干工程管线,不直接向用户提供服务的综合管廊,满足人员正常通行,附属设施完备。干线综合管廊可结合轨道交通、城市道路、市政主干管道统筹建设,补强市政供给系统能力,完善管网拓扑构建,增强抗灾害、突发情况下市政系统韧性;
(2)干支结合综合管廊:用于同时容纳城市主干和配给工程管线,可兼顾向用户提供服务的综合管廊,满足人员正常通行,附属设施完备。干支结合综合管廊可在城市新建区统筹建设,并在有效控制建设成本的前提下,达到市政管网全生命周期综合效益最优;
(3)支线综合管廊:用于容纳城市配给工程管线,直接向用户提供服务的综合管廊,一般应满足人员正常通行,附属设施较为完备。支线综合管廊作为干线、干支结合综合管廊的补充,是构建系统网络化、运行智能化的管廊系统的重要保障。
(4)小型综合管廊:用于容纳中低压电力电缆、通信线缆、给水配水管道、再生水配水管道等,主要服务末端用户,其内部空间可不考虑人员正常通行的要求,不设置常规电气、机械通风等附属设施的管廊。
根据近几年北京市综合管廊建设的实际情况与效益分析,新建区系统统筹建设干支综合管廊,优化市政系统布局,在有效控制建设成本的前提下,达到市政管网全生命周期综合效益最优;建成区结合轨道交通、城市道路、市政主干管道建设契机,建设干线综合管廊,补强市政供给系统能力,完善管网拓扑构建,增强灾害、突发情况下市的政系统韧性;首都功能核心区等高密度建成区域,以小型管廊建设为主,织补末端供给毛细网络,提升市政服务水平,使老城区焕发活力。
03
北京市小型综合管廊建设相关依据和案例
为满足北京市综合管廊建设的需要,进一步提升综合管廊建设质量和控制成本,针对城市综合管廊建设中出现的新问题、新需求,北京市于2020年12月颁布了《城市综合管廊工程技术要点》,首次提出小型综合管廊的概念,将缆线管廊纳入小型综合管廊的范畴,为北京市市政基础设施的高质量发展打下坚实基础。
小型综合管廊相对其他类型综合管廊具有较大灵活性和经济性,建成后维护和管理相对简单,特别适用于地下空间资源紧张的城市建成区,通过织补末端供给毛细网络,提升市政服务水平。目前小型综合管廊在地块开发中已有较多应用。
香山革命纪念馆周边缆线管廊是北京市首个小型综合管廊(纳入电力电缆和通信线缆,并预留了非传统的路灯、公安交管、充电桩等管线纳入的条件)项目。项目全长约0.8公里,于2019年5月开工建设,并于2019年8月建成投入使用。该管廊采用了预制拼装施工工法,建设过程中实现了不影响旅游高峰时节游客通行的苛刻要求,成功保障了香山革命纪念馆红色教育基地于2019年9月13日正式向公众开放。


图3-1 香山革命纪念馆周边小型综合管廊建设情况
04
小型综合管廊建设的技术经济性分析
小型综合管廊建设是一项系统工程,涉及较多市政专业管线,需要在工程统筹的基础上做好技术经济性的分析。鉴于小型综合管廊多适用于较窄的道路下敷设较多市政管线情况,本文采用新建城市支路作为敷设载体进行直埋敷设和小型综合管廊敷设的技术经济性分析。
案例情景为新建红线宽18米的城市支路下敷设12孔电力、12孔通信、DN200给水管、DN200再生水管、De250中压燃气管、d800雨水管、d400污水管的市政管线,同时考虑交通信号、路灯照明等线缆敷设路由。采用小型综合管廊敷设情况下,纳入管廊内的管线有电力、电信、给水、再生水等。
方案一
传统直埋敷设方式
该种方式管线在道路下敷设位置较为紧张,机动车道下设置较多检查井盖且未来不可避免会出现“马路拉链”现象。

图4-1 管线综合道路横断面(主路上有井盖)
表4-1 直埋管线工程造价(设计年限30年)

注:工程造价中,电力、通信为管孔外包混凝土的造价,不含线缆造价。
方案二
小型综合管廊敷设方式
该种方式对道路下部分管线进行集约化入廊敷设,除避免机动车道上设置较多检查井盖,未来入廊管线增容、维护、更新能够有效减少对道路及周边环境的影响。

图4-2 管线综合道路横断面(主路上无井盖)

图4-3 小型综合管廊常用标准断面
表4-2小型综合管廊敷设工程造价(设计年限100年)

注:入廊管线工程造价为管道支墩、支架及水管道,不含电力电缆、通信线缆造价。
综合以上两个方案比较,小型综合管廊比直埋管线工程一次投资高65 %左右,但在如果考虑全生命周期(按100年),直埋管道进行三次更换,小型综合管廊建设及运维的技术经济优势明显。
05
北京市综合管廊发展建议
1.因地制宜推进小型综合管廊建设
综合分析北京市各类型道路市政管线情况,小型综合管廊纳入管线可分几种情况:电力+电信;电力+电信+给水(再生水);电信+给水(再生水)+热力;电信+热力;电力+给水(再生水)等,在工程造价增加较小的基础上,能够满足北京市市政基础设施高质量和经济集约建设需求。
北京建成区内部地下现状情况一般较为复杂,实施干/干支结合/支线型综合管廊难度大,成本高,周期长,短时难以从根本上解决建成区的市政基础设施问题。十四五期间,建议先因地制宜进行综合管廊系统的布局和规划,重点结合城市更新、架空线入地、历史文化街区保护提质、市政道路/街坊路/胡同升级改造、轨道交通站点周边管线导改等项目建设小型综合管廊,满足近期管线使用和更新迫切需求。

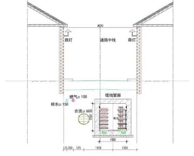
图5-1胡同(4m宽)小型(线缆)管廊建设示意一

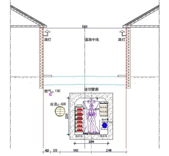
图5-2胡同(5m宽)小型管廊建设示意二
新建道路工程建设条件相对优越,特别在次干路、支路建设中应以提升道路工程建设品质和市政管线服务长效性为目标推进小型综合管廊建设。次干路、支路一般道路红线较窄,应在规划层面成系统的优化市政管线在路网下的排布,在满足服务需求的基础上实现市政管线敷设与道路绿化、路灯、交通信号、交通标识等相协调,避免机动车道出现较多井盖。
2.重要基础设施周边重点推进节点型综合管廊建设
节点型综合管廊可理解为多种市政管线为便于集中穿越重大基础设施建设的综合管廊,一般主要在穿越轨道交通站点/区间、高速公路、铁路、河道、地下交通隧道、重要市政管线、交通枢纽等城市重要的基础设施处修建的综合管廊。根据市政需求和敷设空间要求,可采用干线、干支结合、支线和小型综合管廊。
穿越现状和同步建设的重要基础设施时,应优先统筹各市政管线集中纳入综合管廊,统一进行专项论证,综合管廊一次建成,各市政管线可分期借用管廊穿越重要基础设施。施工工法可采用非开挖技术,如顶推、暗挖、盾构等。
穿越尚在规划的重要基础设施时,应在规划层面优先在重要基础设施位置处规划节点型综合管廊,综合管廊建设前充分预留后期重要基础设施实施条件。
3.建立适合北京市的综合管廊投资决策和审批机制
建议由政府部门主导,在充分调查市政管线建设和维护成本的基础上,进行综合管廊全生命周期建设和运维成本测算,制定符合实际情况的投资决策和审批机制,并颁布综合管廊相关入廊费用收取标准,同时制定相关运维管理标准,特别是小型综合管廊和节点型综合管廊的相关政策和法规的制定,以促进综合管廊的可持续发展。
06
结语
实现城市市政基础设施的补短板与增韧性要求,应在城市科学发展的基础上因地制宜推进不同类型综合管廊的建设。特别要充分发挥小型综合管廊经济节约、实施便捷,兼顾韧性与空间的优势,积极探索北京市特别是首都功能核心区等重点地区的市政管网提质建设新模式,对全面推进北京市“安全韧性城市”建设,提高北京城市综合承载能力,促进北京城市更新发展具有重要价值。
作者:杨京生 吕志成
来源: cityif