中国建筑学会建筑产业现代化发展委员会针对企业提交的新技术成果,经征询专家意见,共推出21项先进成熟适用新技术,编辑并形成了《装配式建筑“先进成熟适用新技术”汇编(第一批)》,供各会员单位和业界企业学习借鉴与推广应用。
现分期对21项新技术做详细介绍,本期介绍的是:装配整体式混凝土叠合剪力墙结构体系。
装配整体式混凝土叠合剪力墙结构体系
1.技术内容
装配整体式混凝土叠合剪力墙结构体系(简称叠合剪力墙结构),是指全部或部分剪力墙采用由内外叶预制混凝土板和中间空腔组成的叠合墙板(双面叠合剪力墙板或夹心保温叠合剪力墙板),并与叠合楼板、楼梯及阳台等混凝土预制构件,通过后浇混凝土等可靠连接方式形成整体的混凝土剪力墙结构体系。本节所指叠合剪力墙结构不包括内浇外挂的单面叠合剪力墙结构。
叠合剪力墙板由内外叶预制混凝土板、中间空腔组成,空腔内可根据需要集成保温材料,通过钢筋桁架或保温连接件等进行连接,在工厂制作而成,现场安装就位后,在中间空腔浇筑混凝土,形成稳定的结构体系。叠合剪力墙板可分为双面叠合剪力墙板和夹心保温叠合剪力墙板。双面叠合剪力墙板内、外叶板和中间空腔内的后浇混凝土形成叠合剪力墙,共同参与结构受力,夹心保温叠合剪力墙外叶板不参与结构受力,仅对保温层起保护作用。


(a)双面叠合剪力墙 (b)夹心保温叠合剪力墙
图1 叠合剪力墙构造
1. 高层叠合剪力墙结构。该体系中,部分或全部剪力墙采用叠合剪力墙板,墙板间的竖向接缝一般位于结构边缘构件部位,水平接缝一般位于楼面标高处,通过附加连接钢筋,预制墙板和现浇部位形成整体。该结构体系主要用于高层住宅,整体受力性能与现浇剪力墙结构相当,按“等同现浇”设计原则进行设计。
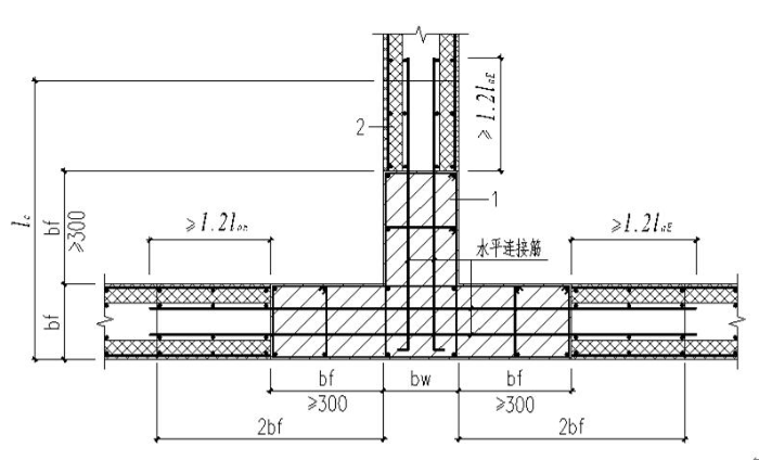
竖向连接节点及常见的L型、T型及一字型水平连接节点的大样图分别如图2、图3、图4、图5所示:


2. 多层叠合剪力墙结构。与高层叠合剪力墙结构相比,结构计算可采用弹性方法进行结构分析,并可按照结构实际情况建立分析模型,以建立适用于装配特点的计算与分析方法。在构造连接措施方面,边缘构件设置及接缝的连接均有所简化,并降低了剪力墙及边缘构件配筋率、配箍率要求,可采用单排连接钢筋、钢丝绳连接构造等方式。
2.技术指标
装配整体式叠合剪力墙结构设计、施工应符合国家现行标准《混凝土结构通用规范》GB 55008、《混凝土结构设计规范》GB 50010、《建筑抗震设计规范》GB 50011、《高层建筑混凝土结构技术规程》JGJ 3、《装配式混凝土建筑技术标准》GB/T 51231、《装配式混凝土结构技术规程》JGJ 1、《混凝土结构工程施工规范》GB 50666、《混凝土结构工程施工质量验收规范》GB 50204等的相关规定。
3.技术优势
采用叠合剪力墙结构,预制构件生产自动化程度达85%以上,施工效率可较现浇混凝土结构提高15%以上,工期缩短30%以上,模板使用率降低70%以上,整体工程进度提高25%以上。该技术具有的具体优势如下:
1. 尺寸精准度高。采用自动化流水线生产,构件及洞口尺寸精度高;
2. 质量稳定性高。通过自动化流水线制作,保证构件质量,降低错误率;
3. 连接可靠性高。采用可靠易检的钢筋搭接连接方式,质量安全可控;
4. 结构整体性好。通过附加连接钢筋和后浇混凝土,使夹心保温叠合剪力墙和边缘构件形成整体共同参与结构受力,结构性能等同现浇;
5. 建筑防水性好。通过中间空腔的后浇混凝土,有效保证墙板竖向和水平拼缝的防水性,确保外墙防渗漏性。
6. 管线安装方便。线盒线管及穿墙管道提前预埋,夹心保温叠合剪力墙外叶板兼做外模板,可大量减少现场线管和模板使用。
7. 现场易建性高:构件重量轻,便于运输、吊装和安装,降低运输车辆和塔吊要求。同时构件修补方便,通过中间空腔后浇混凝土整体浇筑修补,避免质量安全隐患。
8. 工业化程度高:采用信息化设计软件和自动化生产流水线确保数据的无缝传递和应用,结合施工阶段虚拟建造和智慧工地等技术手段,实现BIM数据全流程应用,提高工业化水平。
4.适用范围
叠合剪力墙结构体系适用于抗震设防烈度为6~8度地区的低多层、高层建筑,包含工业与民用建筑。由于本技术结构体系具有良好的整体性和防水性能,也适用于地下建筑工程。
5.工程实例
叠合剪力墙结构体系在安徽、浙江、湖北、深圳、上海装配式住宅项目中有广泛的应用,涵盖美丽乡村、高层住宅、公共建筑等。应用工程包括上海市宝业万华城项目、上海市宝业爱多邦项目、上海市青浦区赵巷镇新城一站大型社区63A-03A地块项目、上海市青浦区盈浦街道观云路南侧23-01地块项目、浙江之江学院、南京市禄口街道拆迁安置房项目、深圳长圳公共住房项目、安徽西伟德试验楼、合肥云谷路-美好云玺、武汉美好长江首玺、武汉美好公园一号、黄石半山云庭等。
来源:建筑产业现代化发展委员会