
【编者按】

历史的回响
首都剧场研读
文 / 柴培根
2016年底,我踏勘北京的富豪宾馆改造项目(现为“览海大厦”)现场时,对面就是首都剧场,顿感项目设计颇有压力——一方面,项目紧邻著名的王府井大街;另一方面,面对前辈建筑师的经典作品,让我有点“向老先生讨教”的紧张感。
在北京核心区做改造更新项目,工期往往比较久。这些年跑工地,我常常停下来端详对面的首都剧场,有时是在朝阳下,有时是在夕阳中。首都剧场就像一位严肃端庄的长者,看着我们这些忙碌的晚辈;而我也会在心里掂量自己在对面的设计做得如何,是否能让老先生“点点头”。

图1 建成之初的首都剧场
在北京的文化符号中,北京人艺的话剧无疑处在无比闪亮的位置。北京人艺的全称是“北京人民艺术剧院”,成立于1952年,首任院长是著名剧作家曹禺。作为中国第一所艺术院团以及最负盛名的专业话剧院之一,在长达70年的发展历程中,北京人艺形成了独特鲜明的戏剧风格,以长期的艺术实践与美学理论的积累,在现实主义与民族化、体验与体现以及再现戏剧美学等方面实现了完美的融合,创建了著名的“北京人艺演剧学派”。其经典剧目《茶馆》《雷雨》《龙须沟》等,更是一个时代的记忆。
对广大北京人艺的观众来说,承载着观演记忆和对剧目、演员情感的,是北京人艺所属的首都剧场。作为广大话剧爱好者心中的“圣地”——首都剧场于1953年2月开始设计,于1956年8月建成,作为新中国第一座专业的话剧演出场所,在周恩来总理的亲自过问和指示下,几经周折,最终交付北京人艺,成为当时人艺专属的剧场。
此后的70年中,这座建筑与创作团体共同成长,造就了一代人的戏剧记忆,在其上演的经典剧目,与它们的创作者——老舍、曹禺、郭沫若、焦菊隐、于是之、英若诚等巨匠大师一起,刻画了一个时代的精神气质。

当一出剧目散场,观众走到大街上回望首都剧场时,那种为表演所感染的激昂情绪,会投射在建筑上(图3)。此刻,建筑与戏剧共塑了美学体验,给人以深深的震撼。作为建筑师,我不禁会想,一座建筑要具备怎样的质量才能赋予这样的体验,承托这般的情感。显然这里的质量不只是建造的质量,更是设计的质量。而对于如今大批量建设的项目来说,能承载时间与情感的质量,恰恰是最为稀有的。从某种程度上说,我们今天完成的所有项目,都是要接受时间检验的。时代变迁之下,建筑技术的进步、生活方式的改变、社会的转型都会混杂在我们对城市和建筑的认识当中,让我们有时会有建筑一直在不断进步的错觉。

图3 首都剧场正立面
“如同其他实践、学科和文化领域一样,建筑的发展既不是循序渐进(progressive)也不是基于目的论的(teleological)。建筑一时的进程并不确保进步。柯布西耶并非是一个比帕拉第奥更好的建筑师;他只是一位不同的建筑师,他面对的是不同的时代和不同的可能性——为常规带来转变的可能性。”在中国院建院70周年之际,“重读”首都剧场既是对林总的纪念,也是一个特别的机会,让我们把视野从眼花缭乱的各种时尚设计中移开,投向历史,去寻找设计的意义,领会前辈的巧思,发现时间之于建筑的魅力,理解何为传承的质量。
现代主义建筑在中国的发展,无疑反映了中国自1840年以来追求现代化的实践之路。从19世纪末外国建筑师在上海、天津、武汉、哈尔滨等城市留下的带有明显西洋风格的所谓殖民风格建筑,到20世纪初留美建筑师归国后开始探索民族语言的设计实践,再到新中国成立后“大屋顶”以及苏式建筑的“社会主义内容,民族形式”,以及到今天对本土设计的探索,都离不开“传统的继承和现代的表达”这一核心命题。19世纪初,当现代主义建筑在西方以一种决绝的姿态摒弃了过去风格化的装饰语言、以横扫一切的方式对地方文化形成了巨大的冲击时,中国尚未融入全球化的浪潮,没有经历过彻底的现代建筑的洗礼,因此在发展建设的过程中,关于建筑风格的讨论就是不可回避的。

讲授“东方建筑艺术”课程

图5 林乐义1949年在欧洲进行为期半年的学术考察

图6 林乐义与建成后的首都剧场
“五四运动”以后,欧洲戏剧传入中国,中国现代话剧兴起,当时称“爱美剧”和“白话剧”。话剧以对话为主要形式,强调口语化,更贴近生活。在没有太多娱乐和传媒的时代,话剧成为反映社会现实和时代主题的最直接有效的艺术形式。因为话剧的表演方式、舞台设置、观众与演员的情感交流方式和中国传统戏剧有很大区别,因此话剧表演空间也与传统戏院不同:一是舞台技术要求更高,要适应多种舞台布景的快速转换;二是为了观众能看清演员的表情、听清演员的台词,观众厅的尺度与舞台的关系都有具体的要求。首都剧场作为专业话剧表演的剧院,在这些基本的技术问题上都做出了充分的回应,成为设计坚实的内核。
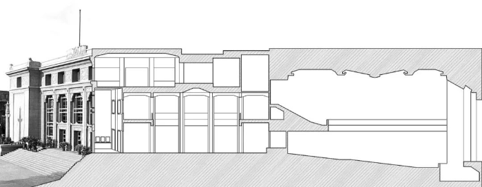
首都剧场舞台空间高22米,宽28米,进深20米,台口高9米、宽13米,舞台中央设直径16米的转台,舞台上方有60多根吊杆,吊放灯光和布景(图7)。在舞台表演区布置高低音麦克风,确保演员音色不会失真,同时还为听力不便的观众设计了30多个戴耳机的座席。可以说在当时的条件下,剧场的专业性是非常高的。

图7 剖面图(柴培根根据历史资料手绘)

图8 首层平面图(柴培根根据历史资料手绘)
大厅为柱廊环绕,方正对称,柱廊把两侧存衣间、大楼梯和卫生间统一起来;二层环廊围绕大厅,成为楼座的休息区(图9)。这里既是进出场观众集散的场所,也是演出前和幕间休息时的社交空间。最初的设计包含大理石柱廊、彩绘的梁枋,以及大厅中央垂下的华丽吊灯(图10)。

图10 刚刚建成不久的大厅
1999年的大修基本保留了最初的设计风格,但取消了梁上的彩绘,改为白色涂料——这样看似简洁了一些,但柱梁的关系显然有些突兀了(图11)。侧厅也是一个独立完整的空间,与前厅之间还有一个过厅衔接,侧厅标高随池座分为两级,原来在过厅对景位置放置的雕塑改造后也被取消,空间的方向性和仪式感随之削弱了(图12)。
图11 改造取消彩绘后的梁柱关系
在首都剧场的观演过程中,走进观众厅的那一刻,这种安定感是非常清晰的。观众厅毫无矫饰造作的处理,只有屋顶中央一朵巨大的圆形白莲花造型,从空中限定了观众厅的范围。莲花造型是1999年改造时重新设计的,取代了原来的红五星。在剧场刚刚竣工时,曾有记者撰文批评林总为了追求观众厅屋顶的圆形造型的完整性而压缩了楼座,造成楼座减少了200余个座席,在当时把这种做法描述为追求形式主义的资产阶级建筑思想的表现。

[ 装饰与风格 ]
20世纪50年代对民族形式的探索之路是从以大屋顶为特征的传统装饰语言和当代建筑体量的结合开始的,随着1954年“反对浪费运动”的开始,大屋顶又成为复古主义的代表而被批判。而林总1953年设计首都剧场时,并没有被大屋顶的形式束缚,而是选择了更为现代的平屋顶的形式,因此立面就成为表现建筑形象的关键。
林总曾谈到:“如果今天广义的理解,建筑是通过房屋形成人的生活环境,因而建筑设计就是环境设计的话,那么我们很多建筑师却还在把大量的功夫花在室内环境与室外环境交界的那一片墙上,而且是室外那一面所谓的外立面上”。
林总这番话,在今天可以理解为建筑师不能唯形式论,而是要以空间为先,要解决好建筑的功能问题;但建筑终归是需要以具体的形式呈现出来的,那面“墙”始终是建筑师要处理的大问题。身处20世纪50年代的建筑师可能都会感受到一种以建筑来描绘国家和时代形象的责任;尤其是面对重要的公共建筑时,建筑师的使命不仅是完成一项工程、满足功能所需,而是还要竭尽所能,探求其中对纪念性和民族语言的表达。因此在考虑建筑的功能性之余,对于形式语言的探索必然成为设计的重点。


首都剧场的正立面具有典型的样式建筑特征(Style Architecture),是三段式的做法。所谓三段式是“在建筑外部表达重力自上而下的传递及材料/ 建造的逻辑,也显露垂直空间的组织。三段式将建筑分为顶、身、台三个层次,强调三者之间的形式、质感、尺度的差异”。首都剧场立面中,基座解决了观众厅升起的高差,中段是柱廊造型的入口空间,顶层现在被改造为试验剧场。横向中段是六根立柱形成的柱廊,两侧是对称的实墙影壁造型,衬托出前面台基上的石柱。正立面没有太大尺度的进退变化,但借助虚实变化和比例关系,形成了丰富的层次感和空间感(图17)。
图17 从正面看首都剧场
图18 立面柱廓与背后的通高过厅空间
图19 轮廓比例对比分析

图21柱廊间暗示建筑尺度的玻璃分格(右)
柱廊镶嵌于两侧的实体之间,以柱为门廊收束的边界,呈现非常稳定的构图。强调柱间门头的做法也很特殊,没有简单通过柱廊放大入口的尺度,方案阶段类似于华盖的设计(图22)。

图22 方案阶段水彩透视图(林乐义绘)
入口门头为华盖式设计
在实施中变成嵌于柱间的门头,木质的大门显得很有质感(图23)。装饰彩绘浮雕化,采用了中西结合的做法,装饰的位置和构件是额枋,形制也是提炼抽象的传统纹样,但以浅浮雕表现。
图23 建成的入口门头立面的柱头既没有采用西洋柱式,也没有使用斗栱,而是以梁枋连接,提示了传统木构的特征,在材料和做法上模糊了建造逻辑。似与不似之间的分寸拿捏得恰到好处,仿石柱之间的穿梁并不让人感到突兀。柱头两侧竖向雀替的做法在当时应该算是很大胆的处理,也体现了林总一种轻松写意、不墨守成规的创作状态。我猜测,林总也许是考虑到石柱的柱间距离相较木构更窄,如果按规制,在柱间设置雀替容易给人一种“搭接”的感觉,若缩小构件尺寸,又与柱子的比例尺度不符,索性将其竖向放置,既是对传统装饰的提示,又表明了差异(图24、图25)。
图24 首都剧场柱间雀替(左)
图25 中国传统建筑雀替(右)
还有一处装饰细节也很有趣,那就是顶层浅浮雕装饰的纹样经仔细分辨,居然有三种不同图案,而且在排列方式上也呈现为一种随机状态,不知是施工时的差错,还是林总留下的俏皮细节,今天也是无处寻找答案了(图26、图27)。
图26 顶层浅浮雕装饰纹样细节
图27 顶层浅浮雕装饰纹样位置构成与装饰是处理建筑形式语言的两种基本手段,对首都剧场的研读让我对此有了更深入的理解。童明老师在纪念杨廷宝先生的文章中曾引用在巴黎美院执教的乔治斯·格洛莫(Georges Gromort)关于建筑构成的解释:“构成的本质就是将分散的部分组合到一起,并使之变得有效,使之成为一个整体……这一操作优美地表达了整个体系,这在很大程度上决定了建筑物的外观。” 童明老师在该文中亦写道:“所谓布扎的‘建筑构成’,是关于建筑设计的一种精确性思考,它并不是无中生有通过全新创建去形成某种结果,而是将那些已有的以及未知的内容,经由组织而呈现出来。这一操作过程旨在为这些要素纳入到某种秩序之中,使人们得以感知并获得理解……因为美是对于各个要素之间和谐关系的体现。”

建筑透过形式语言和视觉感知与人交流时,形式美只是一方面。在形式背后,建筑也需要触动人的情感,形成建筑的表情,让人能够辨识。从这个角度来说,“装饰”是建筑的另外一种功能。无论古典建筑还是现代建筑,所谓的美学追求,其内容不仅是指建筑学意义上的专业范畴,也包括来自社会环境和历史文化影响下的大众审美习惯。只要建筑还需要通过解释来让甲方或者使用者接受,这套解释的话语体系就总会转化为形式的特征,也就是“装饰”。所以文丘里在《向拉斯维加斯学习》中直言:“当现代建筑师理直气壮地放弃建筑物上的装饰时,没有意识到其设计的建筑物就是装饰。通过用空间表达而不是符号和装饰,他们使整个建筑物变形为一只‘鸭子’。”与此同时,他也提醒当代建筑师:“现在应该重新评价罗斯金曾令人震惊的观点:建筑就是有装饰物的结构,但我们应加上浦金(Pugin) 的告诫:装饰结构(decorate construction)没关系,但千万不要去构建装饰物 (construct decoration)”。
林总在《建筑学报》1981年第3期上发表的这篇文章,表达了他一直秉持的对环境的关注。今天分析首都剧场与周边城市环境的关系时,会清楚地看到建筑的正立面与王府井大街通过退让的广场,形成了具有仪式感的城市空间,同时也与南侧的救世军教堂之间在体量和高度上形成协调的关系(图1)。而剧场北侧与报房胡同之间,现在只有一片开阔的内部停车场,显得建筑有些孤立,在胡同中看也有些突兀(图29)。从方案模型上看,其实林总也是有相应处理的,是以围墙为边界,用一片绿地花园缓解建筑体量与胡同的关系(图30)。不知将来北京人艺扩建的新剧场完成以后,是否还有机会实现林总当年的设想。


同时期杨廷宝先生在金鱼胡同设计和平宾馆时也采用了类似的策略,以墙围院协调胡同尺度,而把大体量建筑放在院子里,减少其对胡同的压迫(图31)。我们在首都剧场对面览海大厦的改造项目中,也尝试用院墙限定边界,以树木花园形成缓冲。这对于协调现代建筑体量与传统街区肌理的矛盾,恢复传统胡同空间的尺度还是很有效的方法(图32)。


[ 后记 ]
举办这次建院70周年的“重读经典”活动时,很多20世纪五六十年代作品的图纸都已经找不到了,幸好张广源老师保存整理了一些当年的老照片,包括首都剧场方案设计阶段的模型和渲染图照片——正是这些宝贵的资料让我们有机会了解最初的设计和最终完成的建筑以及1999年整修后的变化。
图33 首都剧场入口台阶改造前(左)、改造后(右)对比我们作为实践建筑师,如何从这样的研究中获得对于今天工作的启发和教益,这也是传承的重要含义。尽管今天我们几乎不会再使用古典的原型开展设计,但其中蕴含的设计的意义和价值依然值得尊重和学习。
素材来源:中国建筑设计研究院有限公司