
编者按:
北京冬奥会正进行的如火如荼,作为部分冰雪赛事场馆的首钢园,又一次成为了城市片区更新的新典范,从火到冰,首钢园又完成了一次新的城市更新。
北京首钢园区作为目前中国国内规模最大的重工业遗存更新,其基于遗存再利用的实践,表达了国内对工业遗产价值在社会学上的积极肯定。
在“大事件导向”复兴模式的引领下,园区采用针灸式更新方式,通过对四组重要锚点建筑进行功能转化并导入新业态,逐渐激活区域;依托锚点建筑及其营造的公共空间,形成了南北贯通的“脊状带形广场群”,为未来城市生活提供了不可或缺的活力发生场。

图源网络
工业遗存更新的第一个要素就是,要承认工业革命中极大地推动了人类生产效率提升的工业建筑物、构筑物,除了具有生产职能外,也具有较强的文化、历史、美学和社会价值。
目前,大多数工业遗存都是第一次、第二次工业革命的产物,它们曾是新生产力、新技术和新思维的物化代表。然而,在后工业革命的浪潮下,它们逐渐褪去曾经华丽的外衣,被认为是落后、过剩和淘汰的同义词。
工业遗存的价值认知经历了从无到有的历程,早期,工业遗存普遍被认定为毫无价值,应该被彻底清除;后来逐步肯定了其是人类文明进程中重要的组成部分,兼具物质和文化价值,因而提出应被谨慎保留。
世纪之交,理查德·罗杰斯(Richard Rogers)指出:“在已开发的土地(棕地)上重建和再利用已建成的建(构)筑物,一定会比在未建设的土地(绿地)上建设更有意义。” 他清晰地表达了工业遗存价值概念认定转变后社会学上的肯定。
01
首钢园区工业遗存状态
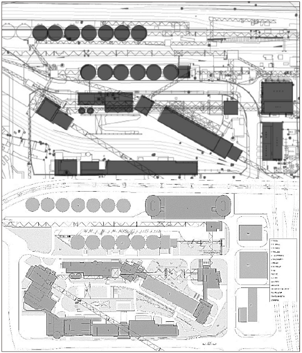
承载着集体记忆的物质载体—老旧工业园区,在多大程度上被珍视、被留存,与一片土地被尊重的程度具有正比效应,是其重要的文化属性(图 1)。

图1 首钢园区文物保护和保留工业资源规划图/北京市规划院
首钢园区核心区的土地面积为8.63平方千米,是北京城六区最后一块可被大规模、连续开发的集中型土地,土地占据近3.6千米的永定河岸线,北接石景山,西望西山山麓,南望园博园,自然生态条件极佳。
园区北区保留了大量的工业遗存,两湖片区遗存囊括了“炼铁、制氧制氮、软化水、储煤制粉、电力及变电、冷却、鼓风”等各厂的生产系统内容,还包含了办公、后勤、职工宿舍、电影院等配套生活及文娱设施,在“产—居”两个维度上为全景式呈现原有厂区的工作和生活记忆,提供了最好的物质载体。
首钢园区大量的遗存保留,体现了城市和企业对土地的极大尊重,也为较为完整地呈现园区的既有工艺系统提供了条件。在工艺优先的工业设计流程中,工艺的正确与完整是第一位的,因此,工艺对于工业建筑的群体布局和单体空间以及各种构筑物的建设,具有决定性的作用。
保护遗存的标准不应局限于视觉审美,即仅对一些有特色的空间建筑实施保护,而是应该相对完整地保存区域的工艺体系及由该体系决定的群体布局关系。这与历史文化街区保护中“整体肌理和重点建筑同样重要”的保护关系异曲同工。
02
首钢园区更新
首钢园区城市更新是目前中国国内乃至世界范围内规模最大的重工业遗存更新项目。项目占地面积达8.63平方千米,其中,规划建筑面积为1060万平方米,是北京市区内唯一的可被大规模、联片开发的区域。
首钢集团落实中心城“减量提质”发展的要求,于2016年、2017年两次对园区控规进行优化调整,总建设量从最初的约1300万平方米核减了约200万平方米,以实现“减量提质、增绿留白”。
园区总体规划依长安街西延段划分南北两区,首钢集团自持一二联动改造运营部分,南北两区面积合计645公顷,其中,北区规划总用地面积为291公顷,建设用地面积为96.4公顷,建设面积为183万平方米,绿地面积为84公顷;南区总规划用地面积为354公顷,建设用地面积为137公顷,建设面积为390万平方米,绿地面积为126公顷;东南片区规划整理一级土地面积为218公顷并进入二级市场流转,获取土地出让金以支持园区更新建设。
首钢园区希望在首都新一轮城市化进程中真正承担起城市“一核一主一副、两轴多点一区”布局中“架构中轴两翼、两翼齐飞”的城市职能。园区的“动态更新”,为深化当下北京城市供给侧改革、助推城市化进入下一个精耕细作的发展周期奠定了良性基础,也为北京“打造城市复兴新地标”提供了优秀的范本 (图 2)。

图2 首钢园区整体规划示意图
03
复兴模式选择
工业遗存更新须依据自身的城市能级、产业定位、文化特征、遗存特色等具体情况,客观地判断和选取与之相匹配且能有效激活片区更新的复兴模式。复兴模式主要可以归纳为“大事件导向”和“文化导向”。
地理学研究中“ 大事件”(Mega-event或Great Event)通常被定义为重大(通常是国际性和全国性)的一次性或周期性活动。这些活动的核心价值在于其独特性、重要地位以及创造利益和吸引注意力的能力,有助于提高城市作为短期或长期旅游目的地的吸引力和盈利能力。
既有研究对“大事件”的定义,既包括奥运会、世博会、亚运会、世界经济论坛、国际组织峰会等国际性重大事件,也包括国家级和区域性具有影响力的会议、会展和节庆活动。
大事件对城市更新具有积极的促进作用,正如简·雅各布斯(Jane Jacobs)所言:“事件是促成历史建筑及空间再利用得以发生的催化剂和潜在动力。”这里的“事件” 不仅包含学术意义上所指的具备重大影响力的大事件,也包括城市级别的重大开发与更新项目。
“大事件”模式通常被用于具备重要区位或重要历史价值的工业遗存,通过政府倾力打造和长期持续投资将其转化为城市新的活力场所或文化空间。
“大型公共事件”(如作为2020年冬奥会主办城市)和“大型城市文化事件”(如2019年首钢企业举行百年华诞纪念活动),即是“大事件导向”在北京首钢园区复兴进程中的最佳激活引擎。
04
“针灸式”更新策略
“都市针灸”(Urban Acupuncture)概念最初源自于西班牙建筑师和城市学家马拉勒斯(Manuel de Sola Morales)。
马拉勒斯认为“针灸”是指一种小尺度的城市更新,这里的小尺度更新是相对城市区域大尺度更新而存在的。同时,这种小尺度更新除了在更新规模方面相对较小之外,还拥有相对较短的实现周期,能够较快呈现更新后的社会效应。针灸式更新在实效上强调通过自身更新激发并带动周边地区的城市更新。
美国学者韦恩 · 奥图(Wayne Atton)和唐·洛干(Donn Logan)提出的“城市触媒”理论,也与针灸理论类似,强调更新进程中“点”对“面”的带动、触发和催化作用。
国际上众多优秀的城市更新案例,都可以看到点状针灸式更新的“触媒建筑”在区域更新中起到的重要锚点作用。伦敦的国王十字车站和圣潘克拉斯车站为街区带来持续的人流和空间活力,谷仓式的综合体为街区注入艺术活力;
贝尔瓦科学城在“高炉”里放置国家级实验室的产业孵化器,表达了重振南部旧工业区经济的决心;汉堡港城在空间对位上选择了易北爱乐厅、过海社区和国际海事博物馆三处触媒建筑,来“引爆”整个片区的持续更新活力。
以上项目都有匹配其落位产业的核心特色单体,且均是依据遗存建筑更新而成,这些遗存建筑本身就具有较高的历史、社会或文化价值,以优质的历史建筑匹配重要的当代功能,更新后,它们在场区内形成极有辐射力的“核”,由点及面地带动片区的城市活力。
首钢园区更新选择了都市针灸的策略,通过保护、再现重要建筑的工艺和艺术价值(保存工艺主要组成系统,以展示其工艺价值;尽力保留遗存风貌,以彰显其艺术价值);通过风貌的整体呈现,有效保护历史价值和社会价值的物质载体;植入新型产业内容,实现其使用价值;强化 IP 价值,增进传播,有效更新,整体提升园区在城市认知经济地图上的位置,最终实现土地和物业价值的充分提升(图 3)。

图3 首钢园区北区西侧锚点建筑
05
“针灸式”更新锚点建筑
针对北区保留的大量工业遗存,城市设计提出了“点面结合”的整体策略,既对炼铁工艺进行整体面状保存,又选择了四个核心锚点项目来进行“都市针灸”,以突出工艺群核心建筑。
它们分别位于是供、储料区的冬奥广场,位于炼铁区的三高炉博物馆,位于储煤制粉区的冬训中心和冰球馆,以及位于自备电厂区且毗邻冷却塔的单板滑雪大跳台。
5.1 首钢西十冬奥广场
冬奥广场作为首钢园区北区启动的首开项目,其落地具有重要的标志性意义。奥运的超强品牌(Intellectual Property,简称 IP)极大地提振了城市传统地缘认知地图中该区域的影响力。在“绿色奥运、节俭奥运”理念的指导下,冬奥组委在永定河畔石景山东麓、阜石路以南,选择了首钢园区西北角的西十筒仓片区(图 4)。

图4 俯瞰首钢冬奥广场全貌
该基地的名称来源于地块北侧原京奉铁路西十货运支线。基地内主要有园区一号、三号高炉炼铁厂的储料、供料区,储料区原有南六筒和北十筒,因修建 S1 号低速磁浮线,拆除了西北侧的三筒,留存南六筒和北七筒;供料区因修建通往小西门的支路,拆除了三号高炉料仓,留存一号高炉料仓,N3-3、N3-2、N3-17、N1-2 转运站四座;还留存了为一、三高炉循环冷却水提供动力的联合泵站及配套锅炉房水塔一座、主控室一座、返矿仓一座、空压机房一座,以及干法除尘器及压产发电控制室一座(图 5)。

图5 首钢园区内联合泵站改造为办公建筑
这组工业遗存更新即加建,总建筑面积达8.7万平方米,其中,转运站和料仓、筒仓、主控室、联合泵站是作为主要的办公建筑,在N3-2 转运站南侧加建了国际会议中心,联合泵站西侧结合水塔加建了奥运主题展厅,将一间返矿仓和空压机房改造为倒班宿舍(即工舍酒店),将压产发电控制室和干法除尘器所在地改造为星巴克冬奥园区店(图6)。

图6 首钢园区内压差发电控制室改造为星巴克咖啡
最终围绕五边形院落中央的天车广场,形成一组水准较高、具有强烈工业感的综合办公园区。
5.2 首钢三高炉博物馆
高炉博物馆是利用原炼铁三号高炉及其冷却晾水池秀池改造而成,也是所有首钢人的精神家园。高炉北侧紧挨着冬奥组委办公园区,其东侧为晾水池东路,南为秀池南街,西侧秀池一直延伸到石景山东麓山脚下,高炉与石景山上的功碑阁遥相呼应(图 7)。

图 7 高炉与石景山上的功碑阁遥相呼应
三号高炉周边较完整地保留了附属热风炉、上料通廊、转运站、冷却水泵站、出渣口及渣沟、储水渣池、渣池天车及天车梁、出铁口、铁水运输铁轨及鱼类车、高炉控制室、各种除尘器,可以说,极佳地保存了高炉从储料、上料、鼓风、炼铁,到出铁、冷却水循环、出渣、储渣、除尘等一系列流程,提供了一组完整的“炼铁工艺”实体标本的“体验式博物馆群”。
高炉本体结构为由环绕炼铁炉心的“四梁八柱”承托起的直径达80米的环形铸铁厂,巨大的圆锥台形的罩棚顶标高43米,高炉最高点煤气放散检修平台顶高105米,罩棚内首层为运铁火车及鱼类车通行平面;二层高9.7米,为出铁场平台,是炼铁的主要工作面;三层高13.6米的参观环桥结合外部引桥(引桥已被拆除),为嘉宾参观提供车行可达之便。本体内部主要利用一、二层布置博物馆(图8)。

图 8 高炉本体罩棚内部
高炉北侧四座热风炉和热风总管及重力除尘器(原下降管已断裂并被封闭),作为主要构筑物被保留。西侧原三层主控室被拆除,代之以单层“人工化丘陵地坪”形态的三座附属建筑,分别为临时展厅、学术报告厅、纪念品销售及配套餐饮点。平均水深 4.5~5 米的悬湖秀池内部植入了水下停车库,提供 844 个机动车位,车库内还包含一座圆形水下展厅及配套的临时展厅。
三高炉博物馆,作为2019 年首钢建厂世纪庆典的献礼工程展示于众人眼前,项目南广场也将作为园区北区最大的开放空间,为类似的公共盛典提供独一无二的场地。
5.3 国家体育总局冬训中心
冬训中心是为配合首都体育馆改造,给冬奥会冬训国家队提供一处高水平的训练生活基地而设计。项目用地南侧为四高炉南路西延段,北侧为用地内部区域道路,东侧为电厂东路,西侧为西环厂路,紧邻石景山(图 9)。

图 9 精煤车间东侧透视
总建筑规模约为7.6万平方米,主要使用功能为冬奥比赛、训练用房及餐饮、住宿配套设施(图 10)。

图10 国家体育总局冬训中心室内
精煤车间原为36×180米单跨钢桁架人字坡的储煤车间,运煤站原为85×95米四跨钢桁架四折坡屋面的厂房,金工车间为一对单跨混凝土弧形桁架厂房和一栋三层办公楼组成的“U” 形建筑。结合功能需求,精煤车间改造为训练馆,运煤站改造为冰球馆,金工车间改造为配套商业用房。
精煤车间由于功能上植入了三块冰场,体量大大增加,设计采用化整为零的手法,将巨大的体量拆解为东西纵向四组体量,在东西山墙上还原原精煤车间36 米跨钢桁架的体量关系,原有车间抗风柱、柱间支撑和天车梁均被完整保留,外墙 “首钢红”色彩的运用,传承了原有建筑空间中的色彩关系。
冬训中心东侧的开放城市广场,通过微地形的起伏界定了静谧的场域空间,两馆间的东西向主通廊,则提供了从浓缩池和冷却塔之间界定视廊并“对话”四号高炉的绝佳场所。
5.4 首钢单板滑雪大跳台
单板滑雪跳台作为国际雪联新设的比赛项目,曾在平昌冬奥会上首次作为正式比赛项目。单板滑雪大跳台选址毗邻群明湖西岸,依托园区自备电厂冷却塔,于东南侧布置。跳台总长度约为160米,出发区高度为47.5米,起跳点为18.9 米,结束区为-4 米,总落差达51 米,造型最高点为61米。
大跳台外观设计灵感源于敦煌壁画“飞天”,柔和飘逸的形态与雄健壮硕的冷却塔交相辉映。嵌入湖中的看台区在巨大的工业空间尺度下,为市民提供了依托体育竞技嘉年华场景而存在的,极具参与性的城市交往、互动空间(图 11)。

图11 首钢单板滑雪大跳台
06
“针灸式”更新后的公共性重构
从工艺布局到城市布局的转变,是基于对工业遗存空间结构的充分认知以及顺应城市肌理文脉延续的结果。而从工业巨尺度到人性化尺度的转变,则是针对具体遗存的具体改造措施,重视工业遗存并根据当下城市生活对其新的空间诉求,谨慎地作出回应和调整。
可见,在工业遗存更新中,设计总需要直面两种变革性的重构:变工艺流程导向决定的工业布局为人性化生活导向下的城市布局,以及变工业巨尺度关系为“巨 + 中 + 小”尺度聚合的人性化尺度关系。
变革性重构与这三种尺度关系的运用是更新项目最为通用的法则,从国王十字圣马丁艺术学院谷仓式中庭的置入,到贝尔瓦科学城高炉孵化器门厅的精密链接,再到“上生 · 新所”中的哥伦比亚俱乐部环廊对空间的“织补”,无一不是用重构尺度的方式来加强空间活力。
工业厂矿基于工艺优先、节材节地,以及工艺间动线最短、能耗最少的布置原则,在总体布局中呈现出强烈的“密度特征”。对于“人的尺度”和“密度构成”之间的关联,诺伯格·舒尔茨(Norberg Schulz)有这样的阐述:“营建地区与周围地区相比是否具有同一性,要看它是否达到一定的密度。稠密作为其特征,可被认为是地区满足人的需求的基本要求之一……总之,密度一般是与了解的‘人的尺度’相对应的。”
如果说,城市的场所感是“像温暖地披在肩上的外套”,那么,这种织物对肌肤“拥挤”的保护,正适合作为首钢园区复杂高密度工业系统带来的“拥挤”的通感。“栖居的基本特征就是这种保护”,“拥挤” 正是以一种强大的“干涉力”带来被保护的感受,通过近人尺度的空间植入,建构起工业巨尺度和人性尺度的关联,有效地将“压抑”转换为“亲切”,重新带我们进入熟悉的、人性化的城市空间所营造的“场所感”。
作为曾经的一号、三号高炉主要供料区的西十冬奥广场,区域内原有的料仓、转运站和皮带通廊等工业遗存,都是依据生产的工艺流程来布局,缺少城市空间的秩序感,巨型工业尺度也让人缺乏亲近感和安全感。设计在几十乃至上百米的工业尺度和精巧的人体工程学尺度之间植入了一到两层的中尺度新建筑,尽力弥合原有大小尺度的差异(图 12)。

图12 首钢西十冬奥广场的空间尺度缝合效应示意图
通过一系列插建和加建的建筑,原有基地内散落的工业构筑物被细致地“缝合”了起来,工艺导向下的布局被转化为一个充满活力、由不规则五边形城市院落构成的布局。设计正是希望以“院”的形态语言,回归东方最本真的关于“聚”的生活态度(图 13)。

图13 首钢西十冬奥广场总平面空间
尺度缝合改造前后比较
作为老北京极具人情味的一种居住和工作的空间模式,大院的“气质” 是摆脱了工业喧嚣之后的宁静与祥和,体现了后工业时代对人性的尊重。后奥运时代,冬奥办公大院将再次迎来空间重构,封闭院落的打开将使其更具有场所感和公共性,院落也由此转换为开放的城市广场。
园区最北端的城市广场向南依次串接了三高炉南北广场、五一剧场东广场、澄清池西广场、冬训广场、冷却塔西广场和九总降(变电站名称)广场,最终来到群明湖北岸。这一系列广场的开放空间与保留的南北绿化通廊,共同架构了“两湖”(群明湖与秀池)区域的城市公共空间系统,形成一个类似于瑞士伯尔尼(Berne)带形广场结构的巨大 “脊状带形广场群”。
首钢“两湖”区域公共空间塑造,正是通过“脊状带形广场群”的组织模式,使这组公共空间系统兼具了规划生长主轴和多维的广场空间汇聚功能,具备足够强的开放性和可达性,是未来城市生活不可或缺的活力发生场。
从开放空间上看,这根“脊”串接了冬奥中央广场、三高炉南北广场、五一剧场东广场、澄清池西广场、冬训广场、冷却塔西广场、九总降广场八个或围合或半开放的广场,以及群明湖北侧滨湖绿地、制粉车间东南侧绿地、九总降广场西侧绿地、澄清池西侧绿地、五一剧场东北侧绿地和秀池南侧滨湖绿地六块开放绿地,可以提供依托周边建筑差异化功能所打造的多样化的城市生活体验场所(图14)。

图14 首钢园区北区带形广场群落结构图/易兰景观、筑境设计
从城市功能上看,带形广场群周边附着了高线公园、儿童运动体验中心、邻里商业中心、冬季训练中心、冰球运动综合馆、运动员公寓、办公研发楼宇、剧场剧院、商业街、博物馆、临时秀场、咖啡店和酒店。
可以说,除了居住产品之外,区域内包罗了一个城市所应含纳的绝大部分功能,它们以开放的姿态重回城市的怀抱,将极大地改善和提升原石景山区产业业态单一、第三产业发育不良的现状,成为北京优质城市生活的重要示范区域。
从生态系统上看,轴线串接了大量保留林地,形成了“两湖”间的绿色生态廊道,绿带地下的涵管也有效地连通了“两湖”水体,结合西向涵管最终与永定河水系联结为动态、自洁的“自然水网”,彻底甩掉了工业晾水池的“工业”二字。
在更新进程中,针灸策略下锚点建筑的选择,提供了强劲的动能支撑,而对一系列锚点建筑间公共空间的梳理、营造和串接,则架构起园区北区的空间之轴、生态之脊,最终为园区从工业性到城市性的华丽转身以及重新唤起城市的活力,提供了坚实的保障。
-来源:《城乡规划》2020年期刊
-作者:薄宏涛 筑境设计董事、总建筑师