


国家雪车雪橇中心

文 /李兴钢 刘紫骐 中国建筑设计研究院有限公司

鸟瞰
No. 1
三项一体:雪车雪橇运动是雪车(Bobsleigh)、钢架雪车(Skeleton)和雪橇(Luge)三项运动的统称,具有悠久的历史,在1924年第一届冬奥会便被正式列入为比赛项目。最初的竞赛项目仅有雪车,在1964年第九届冬奥会与2002年第十九届冬奥会上,雪橇与钢架雪车(曾短暂进入1928年与1948年两届冬奥会)先后正式成为奥运竞赛项目。自此,雪车雪橇运动成为了三项一体的冬奥赛事。根据国际单项组织的规定,赛道设计最大时度为135km/h,最大加速度为5m/s2,因此雪车雪橇运动又被称为“雪上的F1方程式”。

赛道回旋弯
从无到有:苛刻的竞赛场地要求、极具专业性的竞技项目、高昂的建设与维护费用导致在世界范围内仅有16座标准雪车雪橇场馆,其中2座位于亚洲。在设计之初,面对国内相关技术空白、设计资料缺失、可借鉴经验匮乏的状况,北京冬奥会延庆赛区国家雪车雪橇中心成为一次从零开始、从无到有的挑战。针对场馆设计方法及关键技术的研究工作就此展开,在成功地完成了赛道选址与设计、结构选型与设计、水暖电系统定制、附属用房配置与设计等关键节点后,为延庆赛区量身定做的国家雪车雪橇中心应运而生。自此,国家雪车雪橇中心成为了世界第17座、亚洲第3座满足奥运标准的竞赛场馆,同时也是中国第一座雪车雪橇场馆。

世界雪车雪橇场馆赛道简图
体态共生:国家雪车雪橇中心坐落于延庆小海坨山南麓山谷地带一侧的条形山脊之上,此处风景秀丽、植被茂盛,地形复杂、用地狭促。围绕延庆赛区的核心设计理念——“山林场馆、生态冬奥”,雪车雪橇中心的设计综合考虑了山林环境对场馆规划、建设带来的挑战,力图通过赛道设计、建筑设计、景观设计的联合创新,使建筑景观与自然环境交互融合,在满足精彩赛事要求的基础上,建设一个特定体育运动与生态山林环境相融共生的冬奥场馆。

场地选址
世界领先:作为北京2022年冬奥会延庆赛区的新建竞赛场馆,国家雪车雪橇中心采用了创新技术和方法,填补了国家在该工程建设领域的空白,赛道和场馆设计的全过程都经过了国际奥委会、国际单项体育组织和北京冬奥组委的审核,并经国际认证和测试,达到了同类型场馆的世界领先水平。除作为奥运会、其他世界级赛事场馆和中国国家队及国际训练基地之外,也为赛后大众体验车橇运动和场馆长期良性运营提供了充分条件,使国家雪车雪橇中心成为一处可持续发展的冬奥遗产。
No. 2
山脊南坡:结合雪车雪橇运动的工艺要求(主要是适宜坡度)与其他场馆的地理位置关系等综合要素,国家雪车雪橇中心选址于小海坨山南麓一处坐北朝南的狭长山脊之上,因此也成为了目前世界上唯一的一条南坡赛道。南坡的日照时长和平均地表温度均高于北坡,会对场馆的制冰、保冰带来一定程度的不利影响。同时,山坡上的建设用地极为狭窄,东西方向最短距离仅有130m,在如此紧迫的山脊上排布一条近2km的赛道并安置其配套功能用房,紧凑有机的布局和对地形的精确控制显得格外重要。

赛道组合立面图
气候保护:为解决南坡阳光辐射强及风、雨、雪等其他气候条件对赛道的影响问题,设计团队提出了“南坡变北坡”的设计策略,并由此研发了地形气候保护系统(TWPS,Terrain Weather Protection System),旨在通过自然地形、人工地形、赛道遮阳屋顶以及挡风背板等,在赛道周围区域形成微气候环境,对赛道的冰面进行全方位、全时段的气候保护:对于日出、日落时分的低角度光照,通过每一弯道内侧的人工地形(摄影平台)对赛道冰面进行有效的遮挡;针对其他时段的高角度光照,通过能量计算模拟冰面在整个制冰周期中受到的太阳辐射量,利用计算机分析数据,得出一条宽度(悬挑长度)不断变化的遮阳屋面,使每一处屋面以最节约的尺寸满足冰面的遮阳要求。地形气候保护系统在保护赛道、满足高质量赛事要求的基础上,最大程度地降低制冷能耗,使南坡赛道拥有不亚于甚至优于(超7%)北坡赛道的节能表现,并圆满地完成了实际运行和国际测试赛的考验。

人工地形气候保护系统

人工地形气候保护系统实景
BIM融合:国家雪车雪橇中心的赛道和场馆依附狭长、紧凑的山体地形设计建造,设计团队自主研发了复杂地形室外场地与建筑BIM融合设计技术,在传统的建筑BIM设计中加入场地BIM设计,通过三维数字化环境精确控制不同功能分区的场地和建筑模型(赛道、建筑物、道路、广场、绿化等),以满足复杂山地条件下赛道和各种功能分区的有机高效组织,使场馆与场地高度拟合。BIM融合设计技术也保障了气候保护策略的有效落实,针对复杂的地形和庞大的数据,在传统图纸中难以解决的设计问题均可在BIM模型中清晰辨别、处理,及时解决场地、建筑中的潜在问题。

赛道典型剖面生成结果

场地平整 BIM 模型
弯道回环:赛道的弯道是雪车雪橇运动的核心,不同的弯道具有不同的竞技特点和观赏特色。国家雪车雪橇中心共设有16个弯道:在场馆北区,10个弯道密集布置,形成一系列连续的S形布局,在S形赛段所围合的范围内设置了观赛区位与摄影点位,以欣赏、捕捉赛车过弯时的精彩瞬间;在场馆中部,设置了一段极具特色的380°螺旋弯道(20°投影重叠),并在其中心配置了观赛广场,观众于此可以欣赏赛车环绕一圈飞驰而过的震撼画面;在场馆南区的后5个弯道也各具难度与特色。

鸟瞰雪景
No. 3
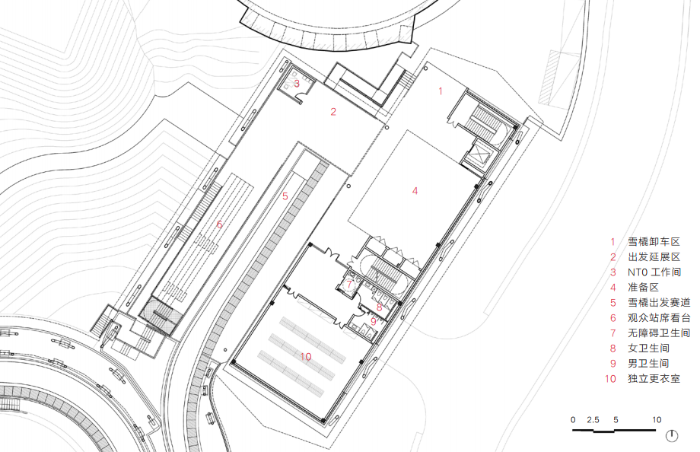
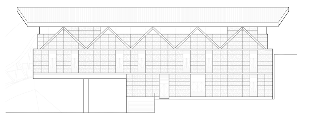
出发/运行:国家雪车雪橇中心共设置了3个出发区和2个出发口,为不同的比赛项目、运动员(青少年)训练以及游客体验提供了不同的出发点位。在海拔高度相对较低的场馆南区设置了运营及后勤综合区,在赛时用于场馆的管理、服务、保障工作,在赛后则会转化为生态恢复研究中心。出发区、运营区用房均依附于赛道设计:出发区用房延赛道布置,采用了与赛道遮阳棚相同的屋面形式,形成并列布置的两段坡屋面体量;运营区用房则局部悬挑于赛道上方,原有的遮阳屋面顺延为运营区的屋顶,形成一段局部拓宽、抬高的双坡屋面。这种顺沿、融合赛道的设计有效避免了因其庞大的功能体量导致场馆尺度失衡问题,使整个场馆以一种相对谦逊的姿态融入到山林之中。

蜿蜒的赛道

出发区1赛道及观众看台

出发区1赛道

出发区立面实景

出发区立面实景
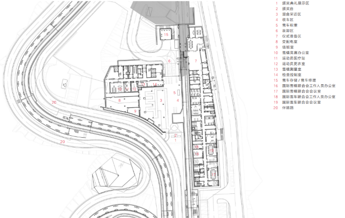
结束/广场:结束区位于场馆中部,包含了终点收车区、观赛看台、颁奖区、媒体采访转播区、控制塔、运动员用房、管理用房、奥林匹克大家庭用房等一系列功能空间,是一个高度集成、功能复杂的综合性建筑。结束区介于西侧的下行赛道与东侧的尾部缓冲赛道之间,其体量于西侧采用了与屋面平行并置的处理方式,三组双坡屋面与赛道遮阳棚并列相邻;于东侧屋面局部扩大、抬高,遮阳棚屋面顺势延伸至结束区屋顶,与结束区融为一体。观众主广场坐落于场馆南区,东、西、南向被赛道包围,具有极佳的观赛条件。因此,在此区域不仅设置了一个700站席的观众主看台,还布置了4个观赛平台。看台与平台均依据原有地势修建:观众看台依附原始山坡设计;观赛平台则采取了退台的方式贴合山体地形修整而成。

结束区内景

结束区外景

悬挑于赛道之上的运营综合区
制冷/冰屋:制冷机房位于场馆南区外侧紧邻赛道最低点,是场馆的“心脏”,其内置的制冷系统通过预埋在赛道内部的制冷管为整条赛道输送和回取制冷剂(重力回流方式)。根据其所在场地的条件限制,制冷机房的平面形状被切割成梯形,屋面则采用了与赛道形式不同的平屋顶,在形式上与赛道区分并与山体地形融为一体。训练道冰屋坐落于场馆西南区的赛道外侧,是国家队运动员用于出发训练的室内训练场地,内含两条雪橇训练道、一条雪车训练道和一条50m热身跑道。冰屋则采用了与主赛道遮阳棚相同的双坡组合渐变屋面,其形状根据内部功能局部拓宽与抬高。

冰屋外景
凌水穿山:国家雪车雪橇中心与奥运村位于赛区南部,中间隔着山谷,两组建筑东西互望。观众经由奥运村南部的安检广场向西,沿山谷水池塘坝步入宽阔的步道,穿越架空在山坡上的钢桥平台和弯折的山中拱形隧道进入国家雪车雪橇中心。隧道布置于雪车雪橇结束段赛道下方的山体之内,沿东西方向穿过山脊,连接了雪车雪橇场馆的内和外。山脊外侧是宁静的山谷与水塘,内侧则是由扁拱形膜结构覆盖的观众主看台和下方宽阔而热闹的观众主广场。

凌水穿山
No. 4
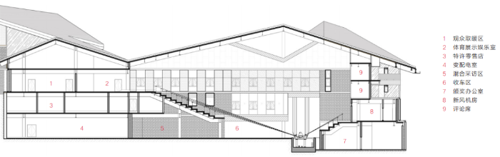
结构配重:雪车雪橇运动具有独特的观赛方式,除了集中看台之外,还设置了沿赛道的观赛“伴随路”,观众可以近距离站在赛道前方欣赏赛车飞驰的精彩瞬间。因此,赛道遮阳棚屋面采用了单边悬挑结构,在赛道后方设置双排V形钢柱,前方则由固定钢索牵拉平衡的三角形钢木组合梁悬挑而出。整条赛道在观赛一侧形成无柱空间,另一侧设置了配重预制混凝土板,减少悬挑梁对V形钢柱施加的上拔力,同时配重板也是上人屋顶步道的结构底板。

屋顶步道
跨道观赛:连续赛道的两侧为相互隔绝的空间,在实际观赛的过程中,观众、教练或工作人员经常需要从赛道的一侧跨越到另外一侧,因此需要为其设置跨越赛道的特殊通道。沿上人屋顶步道共设置了4组跨越通道,使用者可上行至通道层,沿通道横跨赛道,再下行至赛道对面的观赛区域,形成了一条沿赛道上方连续变化的屋顶通道兼步道。

屋顶通道

屋顶通道
联亭步道:在屋顶步道的上方,还设计了4个观景亭,采用与赛道遮阳棚相同的双坡屋顶,仿佛是遮阳屋顶的局部提升,配合钢木组合结构与下方的遮阳棚结构梁相结合,形成了一个整体结构。观景亭按照其布局可以分为两类:一类设置在横跨赛道的通道和步道上方,强调通道的意向,同时具有挡雪、避雨的功能;另一类设置在无需翻越赛道、但特定景观目标最佳的区域,行人可以在此停下脚步观望赛区的景色。

观景亭
屋顶观游:结构配重步道、横跨屋顶通道、屋顶观景亭共同组成了一整套屋顶观游系统,仿佛是架设在雪车雪橇赛道上方的山中游廊。行人在屋顶步道上观赛、望山、眺馆,地面上被遮挡的景色如国家高山滑雪中心、奥运村、西大庄科村和海坨群山都可以被尽收眼底。沿着蜿蜒回转的步道爬升或下降前行,眼前的景色也随之不断变化。这条海坨山脚下的特殊步道既是山林环境中相得益彰的景观建筑,也是献给冬奥会赛后大众山中观光休闲活动的最好礼物。

屋顶步道与观景亭
No. 5
赛游叠置:赛道与屋顶漫游系统以一种平行叠置的方式贯穿整个雪车雪橇中心,赛时观众沿“伴随路”临近赛道观看比赛,赛后游客沿屋顶步道游览、观望整个赛区的景色。观赛、游览两套系统互相独立,但又在关键位置通过上翻、下翻的楼梯相互结合,从而形成了一套叠置而立体的独特流线。在屋顶下方观看高速飞驰的赛车是紧张、刺激的,带来一种人类对自然世界极限探索与征服之感;而在屋顶上方沿屋顶步道游览是松弛、悠闲的,可以沉浸自身体会人类与自然的介入和融合。下方赛道的急速动感与屋顶步道的散漫悠闲构成了强烈对比,赛道竞赛时的分秒必争、热闹喧嚣反衬出赛后的空旷和静谧,激发人对时间、空间的思考和对精神世界的感悟。

螺旋弯远眺出发区

螺旋弯远眺奥运村
消隐山林:国家雪车雪橇中心大量使用小木瓦、木梁、石笼墙等自然材料。在功能和构造上,小木瓦凭借质轻、可塑的特点更好地塑造了蜿蜒多变、宽度不一的屋面形状;木梁因其良好的结构刚度实现了抗风性能和檐下整洁的单边悬挑空间;石笼墙则是二次利用了施工产生的岩体碎石。更为重要的是,这些自然材料可以使占地面积接近4万m2的建筑体量以一种更为和谐的样貌“消隐”于周围的山林环境之中,而屋顶观游系统则是通过路径的引导、界面的设定使空间和自然产生交互,建筑作为中介从而获得了某种“自然性”。如果说材料的选用是一种被动、客观性的消隐,那么空间与自然的交互则是一种主动、主观性的消隐。

赛道回旋弯和伴随路
结构环境:在建筑及空间的设计创作中,实物结构技术与环境利用营造为同等重要且必须紧密结合的设计要素。这里的“结构”既是与“环境”并列结合的名词之“实物结构”,亦是营造“环境空间场所”的动词之“连结建构”。在国家雪车雪橇中心里,赛道遮阳棚采用的单边悬挑钢木组合结构,木梁先进的数控切割工艺高效地实现了长度、坡度不断变化的屋面形式,用于平衡木梁结构配重的屋顶漫游步道,从被动地解决功能需求转变为主动地“营造”空间意境。游人身处屋檐之下或在屋顶之上,既可以感受到人工结构的存在与庇护,又能感受到自然环境的围绕与笼罩,同时还能感受到结构与环境的彼此交互。实物结构作为一种“介质”,以其物质形态对场地自然进行了适度重塑,又因其内在秩序使人与空间环境建立了密切关联,建构了人、建筑与自然之间的交互场域。

蜿蜒的赛道与屋顶木瓦

观赛区
胜景情境:国家雪车雪橇中心是一个依托在山脊上由各种连续弯道构成的特殊形态的高速运动场馆,由于其赛道特有的空间曲面带有功能性、强制性和导向性,为赛道量身定做的结构体系以及结合这种体系所设计的屋顶观游系统及联亭步道,则是在这种原始导向性的基础上叠加了一种人工性的“修正”,形成似乎“精心”的设计布局与引导路径,通过对自然的捕获和容纳,营造出与自然交融互成的胜景情境。观众或游人在屋顶步道上行、望、观、游,庞大的赛道和场馆仿佛消失,其身侧铺展高起的大面积木瓦屋面使人犹如在山谷穿行,构成了独特的近景,远处是不断延伸的建筑屋顶和连绵的无尽山水。夜色渐浓,场馆仿佛一条漂浮在空中的白色条带,一位车橇运动员驾驶一辆红色赛车高速贴壁滑行,消失在海坨群山包裹的夜空之中。

螺旋弯
项目图纸

节点剖面图

总平面图

出发区1平面图

出发区1剖面图

出发区1立面图

出发区2平面图

出发区2剖面图

出发区2立面图

出发区3平面图

出发区3剖面图
出发区3立面图

结束区平面图

结束区剖面图

结束区立面图

冰屋平面图

冰屋剖面图

冰屋立面图

运营区平面图

运营区剖面图

运营区立面图

赛道屋顶构造图

遮阳棚与赛道构造

赛道构造详图

出发区墙身详图

赛道结构轴测图
▲B站和AT采访李兴钢大师的视频全记录
项目信息
业主:北京北控京奥建设有限公司
李兴钢
本文刊登于《建筑技艺》杂志
2021年12月刊