编者按

今天,我们将深度解读的优秀城乡规划为“2021年度南京市优秀城乡规划设计评选”一等奖作品——《南京新街口地区地下空间详细规划》,该规划由南京市规划设计研究院有限责任公司编制。
2020年9月8日,本次规划获得由国内地下空间领域专家陈志龙大师领衔的专家组评审通过。

规划解读
南京新街口地区
地下空间详细规划

经过十余年的运营、使用,新街口地下空间部分环境和设施已显陈旧,现有的地下连通空间与局部人流快速增长的矛盾显现,公共休闲空间和服务设施缺乏,空间品质与服务水平都需要“再提升”。新街口四个象限之间的联系主要依靠新街口站即“T”型连通骨架,除中山南路东西方向外,各象限之间的互联互通有待改善。南京北站到禄口机场的规划轨道交通18号快线将在新街口东部设地下站,推动“新街口”中心向东“再发展”。


同时,新街口核心区地下与地上建筑面积达到1:6,远低于同类中心区地下空间开发比例,现状功能以停车为主,首层公共服务功能仅占32%,且以餐饮和小商品销售为主,与中心城市一级商业中心的定位不符。

谋划新街口地区
地下空间发展思路
根据《南京市城市地下空间开发利用总体规划(2015-2030)》提出的“建设新街口地下城”的发展目标,针对百年新街口老城中心的特点,本次规划以“挖潜提升”为主要思路,通过“挖潜资源、加强连通、完善功能、提升环境”,将新街口建设成为国内地下空间迭代更新的示范区、南京老城最大的地下城。

新街口地区轨道交通及站点情况
基于新街口是国内结合轨道交通建设、地下空间发展较快的城市中心,目前地下连通系统承担了中心区的主要交通换乘和步行活动功能,极大地改善了地面环境。随着新街口“再跨越、再发展、再提升”的新要求,未来新街口发展的主要思路确定为四个“更”:更加一体化发展,实现地上地下一体化、地下互联互通;更加精细化发展,以人为本、改善环境,提升城市中心窗口形象;更加可持续发展,强调区域协调、功能多元、综合防灾;更加特色化发展,彰显文化、特色主题和休闲体验。
本次规划以“问题”和“目标”为导向,通过相关先进案例研究、对标找差,确定中心区地下空间的发展定位、方向和布局结构,并在此基础上对核心区进行了详细规划,主要包括互通互联系统、环境品质、功能布局和竖向标高等内容。为保证规划的可操作性,本次规划对重要节点进行了深化设计,并且制定了规划设计控制引导图则和实施保障措施。

技术路线图

明确五项主要内容
01
扩大研究范围,促进中心区整体协同发展
依据人流活动热力图分析,大行宫文化中心与新街口商业商务中心人流密集、功能互补,为此本次规划提出要抓住轨道交通18号快线规划机遇,未来新街口应重点向东发展,促进新街口与大行宫联动一体,以四环路地下空间为核,依托轨道交通1号线、2号线两条主轴线和大行宫、珠江路、上海路3个轨道交通换乘站点,形成“一核,两轴,三节点”的应连尽连的地下空间结构。

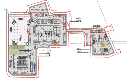
新街口地下空间结构图
为挖潜用地、高效复合利用地下空间,本次规划提出要加强德基三期、苏宁新华社地块、东铁管巷等近期更新改造地块的地下空间建设,并对远期管家桥、游府西街、石鼓路周边老旧住区等可更新地块进行预控,推进金鹰、艾尚天地等关键地块首层使用功能的公共化,鼓励利用城市道路和绿地广场等地下空间。

新街口地下空间潜力分布
02
整合街坊内部通道,构建“小四环”互联互通公共环道
新街口地区的地下空间将形成“小四环”公共环道:西北象限将新增延安路地下通道,串联金陵饭店与德基广场地下空间;东北象限将利用轨道交通2号线站厅,串联德基三期与苏宁新华社地块地下空间,远期东延与洪武路过街通道相连至18号快线站;东南象限将打通莱迪广场与苏宁新华社地块地下通道,与18号快线站联通,实现轨道交通2号线与18号快线的换乘;西南象限将依托东铁管巷项目地下空间,串联金鹰商场,并与轨道交通1号线1号口相连。

新街口地下空间总平图

西南象限东铁管巷改造项目地下空间
03
优化功能布局,引导特色业态聚集发展
本次规划提出将清理目前地铁站“T”型区的商业功能,明确了正、负面清单和严格的控制要求。在目前业态特色的基础上,四个象限将采用差异化的发展策略:东北象限将保持品牌主题店特色,东南象限将引导形成大众活力、综合商业业态,西南象限将引导形成亲子文化体验特色,西北象限将引导形成美食餐饮和休闲主题业态。

04
优化交通组织,构建地上地下一体化交通体系
新街口核心区现有地下停车库约31个、地下出入口约57个。为减少中心区车行出入与人行活动交织带来的安全隐患,本次规划通过增加地下停车库相互之间的连接通道和地下机动车通道的预控,对现有地下停车库出入口进行整合,在减少地面机动车出入口的同时,又形成互联共享的停车空间提高停车效率。
通过“商业街+通道+下沉广场”的组合优化串联交通流线,构建层次分明、高度网络化的步行系统,在现状45个人行出入口的基础上,新街口地区的地下空间将新增29个地面出入口,其中6个实现了与公交站点和出租车停靠点的无缝接驳。针对目前地面非机动停车杂乱问题,规划预留了3处地下立体式智能自行车停车库,预计可提供1000辆非机动车停车位。

05
深化节点设计,支持方案的可操作性
延安路、长江路、淮海路、苏宁地块与轨道交通18号快线站点之间地下通道等节点,是建立地下网络体系的关键,方案通过与相关部门和业主单位的研讨,对各个节点周边单位产权、建筑平面、城市道路、市政管线、大树的等要素进行分析评价,深化各节点的平面布局、竖向标高、功能引导、地面出入口位置等内容设计,以确保规划的可操作性。



规划设计的四大创新特色
创新特色1
多专业协同编制,增强方案的落地性
规划、建筑、人防、交通、市政等多专业协同配合,本次规划积极探索“研究+规划+节点设计”互相反馈与配合的编制模式,共同推动新街口地下空间详细规划向建设实施迈进。
创新特色2
面向规划管理,制定地下空间管控图则
本次规划建立“1+4”地下空间规划图则,对接规划管理需求,明确刚性与引导性管控要求。其中:刚性要求包括地下公共连通道、出入口位置和开敞空间、竖向标高、地下公共服务配套设施,引导性要求包括主导功能、业态、环境设施、文化特色等。

创新特色3
探索老城中心区地下空间“微更新”方法
遵循“以人为本,营造功能多元、体验舒适地下空间”的基本思路,本次规划从“不大拆大建,一边使用、一边更新”出发,减少T型公共通道上的商铺,增加安全疏散和交通空间,设置公共活动和休憩空间。通过增加医疗急救、母婴服务、无障碍服务等人性化配套设施,提高整体地下空间活动体验舒适感。

创新特色4
关注精细化治理,提出针对性的实施措施
针对目前新街口归属三区、各区分治的现状,本次规划提出了建立三区综合管理机构的建议,研究明确首层地下停车空间功能置换实施路径,提出地下空间确权建议和建设地下互通互联通道的奖励政策等措施。

实施成效成果显著
以本次规划为指导,新街口地区地下空间精细化整治工作已全面开展。
成立了三区综合管理办公室统筹新街口地区地下空间的建设,其中新街口地铁站中心圆盘商业设施已撤除、标识系统已经更换,德基通道增加了无障碍通道,完成金鹰、莱迪等地下空间环境品质改善工作。
金鹰中心一期地下停车功能已置换为商业服务和活动展示功能,实现了金鹰中心A、B座地下部分与管家桥地下过街通道的互联,并实现了与地铁2号线连通。艾尚天地地下停车功能的置换也在推进之中。

此外,本次规划为近期苏宁新华社地块、德基广场三期、东铁管巷项目等更新地块提供了外部条件,保障了重大项目的实施,也为南京市域地铁18号快线站点选址提供了技术支持,提前进行了地下通道的预控。
来源:南京规划资源